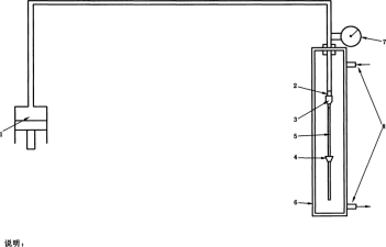
导管爆破压力测试仪符合YY0285.2、YY0285.1-2017

主要参数:
驱动气压: 0.3-10MPa
压力范围:0-10MPA(可调),增压比 1:16
压力读数精度±1% ,配有内圆锥接头
主要配置:气液增压泵、防护机箱、调压阀、卸荷阀、手拉阀、耐震压力表、不锈钢管路、单向阀等
箱体尺寸:高900*宽1450mm*厚650mm

恒温箱:外形310-280-180mm,15升;温度8-100度
(恒温槽)
必须采取预防措施和安全防范措施,以保护试验操作者避免受到加压系统失败和高压下导致流体泄漏所发生的危险。
1,采用临床相关预处理准备试验导管。例如,预先浸泡在生理盐水中,接触常用注射液,或灭菌处理。
2,使试验箱流体温度达到(37±2)C,并在试验过程中保持该温度。
3,将导管座连接到连接器,并用锁定装置牢固固定(如适用)。
4,确保导管内的气体已用流体排出,然后用夹子封闭导管。
5,检査液压回路是否完好并无泄漏。
6,试验前将导管浸入循环的试验箱流体中至少1 min,使其达到热平衡。
7,调节液压源,使其向试验导管供给速率为1 mL/s的流体,以产生可使导管泄漏或爆破的足够压力。对于替代设备,制造商应选用一个压力递增速率来控制试验设备,使其准确地测量到静态爆破压力。
8,将流体注射到闭合的导管中直到导管泄漏或爆破。
9,系统加压时,记录导管座压力,标注其能达到的最大压力o







客服